Este site utiliza cookies para permitir a mudança de língua e o armazenamento dos seus imóveis favoritos. Ao utilizar este site, concorda que o mesmo utilize cookies.

Terreno rústico com viabilidade de construção em São João de Ver

160.000€



Referência

RF288

Natureza

Venda

Tipo de Imóvel

Terreno

Subtipo de Imóvel

Terreno Rústico

Tipologia

Não se aplica

Estado

Viabilidade de Construção

Certificado energético

Não se aplica


Distrito

Aveiro

Concelho

Santa Maria da Feira

Freguesia

São João de Ver

Código Postal

4520


Área Útil

0 m2

Área Bruta

0 m2

Área de Terreno

2200 m2

Partilhar



Contactar Imobiliária

*Preenchimento obrigatório
Ao clicar em 'Enviar', declara que aceita a nossa Política de Privacidade.
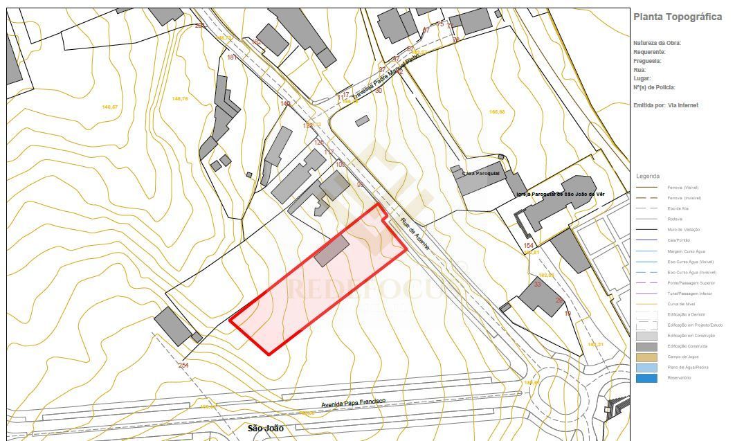
Terreno rústico com benfeitorias inserido em zona passível de construção. 
Com uma frente de aproximadamente 25 metros, o terreno conta com uma área de 2200 m2, encontrando-se em área urbana, e consultando o PDM está inserido em “Espaço Central Tipo III - Urbanizado”.

Os Espaços Centrais — Tipo III estão sujeitos ao seguinte regime de edificabilidade: 
a) São destinados preferencialmente a atividades terciárias e habitação, admitindo -se outros usos, desde que não resultem razões de incompatibilidade com o uso dominante; 
b) O Índice Máximo de Utilização do Solo é de 0.80; 
c) A área mínima dos lotes é de 200m2 , devendo apresentar frentes mínimas de, respetivamente, 8,11 ou 18 metros, consoante se trate de edificações em banda, geminadas ou isoladas; 
d) Número máximo de pisos acima da cota de soleira ≤ a 3, admitindo -se o acréscimo de mais um piso desde que o último seja de aproveitamento do desvão do telhado ou piso recuado.

Admitem -se exceções, desde que aprovadas pela Câmara Municipal, em situações de colmatação da malha urbana existente, quando por motivo de integração urbanística deva ser assegurado o respeito pelos alinhamentos, recuos, pisos ou profundidades de construção de edifícios existentes contíguos, ou em casos pontuais de soluções arquitetónicas especiais, expressamente fundamentadas, que contribuam para a melhoria significativa da qualidade do espaço urbano envolvente ou para alcançar algum dos objetivos estabelecidos pelo presente regulamento.

Nota: Não se encontra disponível qualquer documento que ateste que para o presente imóvel foi emitida licença de utilização, que o mesmo está isento de tal certificação ou foi apresentado qualquer recibo de pagamento das taxas legalmente devidas, pelo que o imóvel pode não dispor dos títulos urbanísticos necessários para a utilização e/ou construção.
Geral
TerrenoResidencial:Sim
Zona
GeraisTransportes públicos:Sim
ProximidadeEscolas:Sim
ProximidadeFarmácias:Sim
ProximidadePadarias:Sim

Este imóvel não tem áreas definidas.

Imóveis
Semelhantes

Terreno
Venda

79.000€

Terreno Urbano em Fiães – 720m²

79.000€

Aveiro / Santa Maria da Feira / Fiães


Ref: RF282

Ref: RF282

Terreno
Venda

195.000€

Terreno para construção de moradias em Rio Me...

195.000€

Aveiro / Santa Maria da Feira / Rio Meão


Ref: RF310

Ref: RF310

2110 m2

Terreno
Venda

127.500€

Terreno para construção em Santa Maria de Lam...

127.500€

Aveiro / Santa Maria da Feira / Santa Maria de Lamas


Ref: RF94

Ref: RF94